西班牙vs德国足彩赔率

建站清单
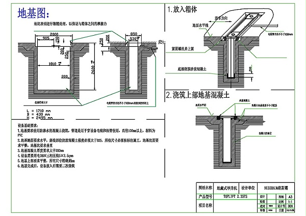
路斯霸2.35TS地藏式举升机地基图

地藏式2.35TS

返回
列表
上一条

路斯霸JUMBO3000PLUS地藏小剪举升机地基图

下一条

路斯霸3500NT大剪举升机地基图