解决方案
世界杯入选球队
技术服务
2022卡塔尔世界杯预选赛积分
规划设计
解决方案
世界杯入选球队
技术服务
成功案例
世界杯赛程预测
培训中心
关于铂锐
联系铂锐
400-139-1969
立即咨询
建站清单
成功案例
4S店
汽修连锁
汽修店
汽修院校
世界杯赛程预测
铂锐新闻
品牌优选
建站清单
汽保小知识
合作客户
四类品牌
自主研发品牌
总代理品牌
代理国外品牌
授权国内品牌
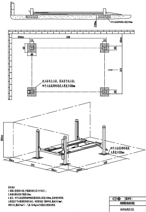
艾沃意特6435.52L举升机地基图
返回
列表
上一条
艾沃意特6501-V2举升机地基图
下一条
艾沃意特6264C举升机地基图